PRIVATE ENGAGEMENT
the renovation of the ancient palaces of pousada da amazonia re-connects and enhances the facades and inner spaces of two side by side urban blocks located in sao luis historical downtown.
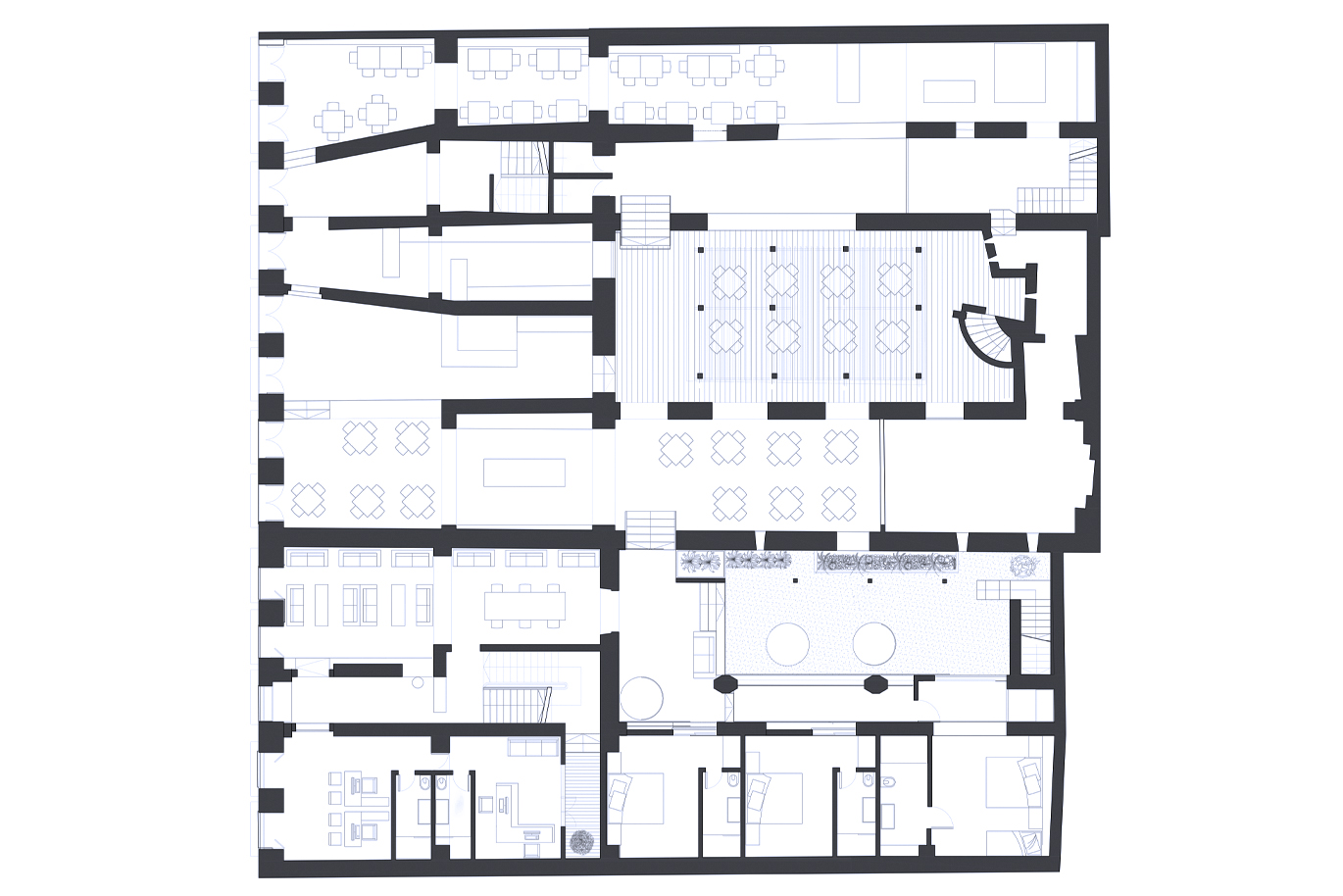
the ground floor is completely dedicated to leisure and welcome spaces, connected by porches with the internal patios and restaurant. there are even some offices to book adventure trips and hiking tours.
the restored and repainted listed facades constitue one side of the most important street in the city center, while the blocks have great extension in depth and contain patios and internal facades, able to define in relation to the inner spaces different typology of tourist accomodations.
so the plan reconfigures the wing on the street with great colonial spaces related to the big existent facade’s openings like hotel apartments with all the services inside.
instead inside the patios we may find hotel rooms and b&b rooms even with covered loggia and enormous trees that remind to amazonia forest and its wilderness.
on the roof top the plan conceives a solarium with swimming pool to complete the pousada facilities and at the same time defines a new panoramic view of the urban city center towards the lagoa.




